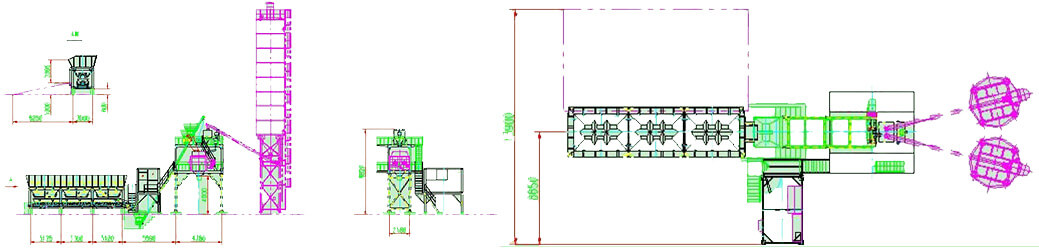
Компактный бетонный завод HZS50
Способ подачи заполнителя: Скиповый бункер
Объем бункеров для заполнителя: 3x9 м³
Взвешивание добавки: 2500 кг ±2%
Производительность: 50 м³/ч
Общая мощность: 80 кВт
Общий вес: 35 т
Описание
Как и модель HZS50, эта бетоно смесительная установка скипового подъемника использует двухвальный бетоносмеситель JS1000, это новый тип компактной смесительной установки с очень небольшой занимаемой площадью. Несмотря на компактную конструкцию, главный смеситель достаточно способен производить равномерный пропорциональный бетон очень эффективным способом, поэтому эта установка очень популярна в различных строительных проектах, таких как сборные железобетонные дворы, различные виды зданий, дороги, мосты и даже заводы по производству товарных готовых смесей.

Основные характеристики данного бетоносмесительного завода:
01
Благодаря подъемному бункеру и модульной конструкции этот бетонный завод отличается такими характеристиками, как удобство монтажа/демонтажа, меньшие затраты на рабочую силу, простота эксплуатации, удобство и простота обслуживания, меньшие вложения и меньшая занимаемая площадь и т. д.
02
Уникальный подъемный механизм, плавный запуск и остановка, длительный срок службы стального троса.
03
Подъемная система оснащена многочисленными устройствами безопасности, такими как защита от ослабления троса, превышения предельного положения и защита от падения.
04
Смеситель JS1000 изготовлен из специального стального материала, имеет обтекаемую конструкцию, значительно повышающую эффективность смешивания; Конец вала оснащен несколькими резиновыми уплотнениями, плавающим уплотнением, пневматическим уплотнением и изготовлен из износостойких материалов высокой твердости; Усовершенствованный гидравлический привод, ручной двойной режим, безопасная и надежная работа.
05
Можно выбрать полностью автоматическое управление (центральный компьютер + ПЛК) и полуавтоматическое управление (с измерительной консолью управления). Последний вариант обойдется дешевле, оба варианта имеют кабину управления с кондиционером, электрическими панелями и т. д.
06
В условиях экстремально низких и высоких температур на данном предприятии можно использовать систему отопления и установку по производству льда.
07
Цементные силосы могут быть изготовлены по частям для удобной контейнерной транспортировки. После прибытия на строительную площадку клиента силос может быть соединен болтами и другими материалами как единое целое.
08
Электрические компоненты - все всемирно известные бренды, могут работать долгое время, удобны в эксплуатации, обслуживании и замене. Полностью автоматическое управление использует новейшую конструкцию для электронного взвешивания, компьютерного управления и цифрового дисплея. Электронная система дозирования имеет буферное устройство и автоматическую компенсацию объема с высокой точностью измерения.
Parameter
| Тип | HZS50 |
| Производительность в теории | 50m³/h |
| Миксер | JS1000 |
| Общая мощность | 80KW |
| Максимальный диаметр заполнителя | 80mm |
| Метод подачи агрегата | Пропускает прыжки |
| Объем совокупных бункеров | 3x9m³ |
| Агрегатное взвешивание | 2500kg ±2% |
| Взвешивание цемента | 500kg ±1% |
| Взвешивание летучей золы | 300kg ±1% |
| Взвешивание воды | 300kg ±1% |
| Аддитивное взвешивание | 40kg ±1% |
| Высота выгрузки | 3.8m-4.1m |
| Габаритные размеры (в рабочем состоянии) (ДxШxВ) | 20.5mX7.5mX11.8m |
| Общий вес | 35T |
| Контроль | Полностью автоматическая центральная или полуавтоматическая |
| Силос для цемента (опционально) | По запросу |
| Цементный винт (опционально) | По запросу |
Быть отмеченным:
1. Подробную конфигурацию можно запросить у наших торговых представителей;
2. В указанную мощность не входит мощность цементного силоса и шнека;
3. По желанию заказчика может быть изготовлен нестандартный дизайн;
4. Вышеуказанные данные могут быть изменены в связи с техническим и дизайнерским усовершенствованием. Пожалуйста, проверьте обновленные параметры при покупке.

-

Компактный бетонный завод HZS25
Компактный бетонный завод HZS25
просмотреть детали -

Стационарный бетонный завод HZS60
Стационарный бетонный завод HZS60
просмотреть детали -

Стационарный бетонный завод HZS90
Стационарный бетонный завод HZS90
просмотреть детали -

Мобильный бетонный завод YHZS25
Мобильный бетонный завод YHZS25
просмотреть детали -

Мобильный бетонный завод YHZS60
Мобильный бетонный завод YHZS60
просмотреть детали -

Мобильный бетонный завод YHZS100
Мобильный бетонный завод YHZS100
просмотреть детали -

Супермобильный асфальтосмесительный завод
Супермобильный асфальтосмесительный завод
просмотреть детали -

Асфальтобетонный завод барабанного типа
Асфальтобетонный завод барабанного типа
просмотреть детали -

Асфальтобетонный завод серии LB
Асфальтобетонный завод серии LB
просмотреть детали
Если у вас есть какие-либо предложения или мнения о нашей продукции, оставьте сообщение, и мы ответим сразу отвечаю на ваши вопросы. Спасибо за вашу поддержку.








